PJ8 and PJ15 Pulsejets
Detailed Information
Last Updated: 13 March, 2002

More Info on Donating Home | Project Diary | My Tools | Contact Me | Links | My Gas Turbine Project | The Afterburner
Turboshaft Engine | Jet-kart | Pulsejet-powered Kart | Kitsets | Troubleshooting pulsejets
Contact me Valveless Pulsejets | Ramjets Explained | 100lbs-thrust pulsejet | Turbo-turbine FAQ
Chrysler's Turbine-cars | How Pulsejets Work | Flying Platform | Metal Spinning | My Lockwood engine
Starting a pulsejet | Making Reed-valves Last | Pulsejet-powered speedboat | The PDE
Thrust Augmentors List of Sponsors | Master Site Index | The Pulsejet FAQ | DIY Cruise Missile
Copyright © 2001 - 2009 to Bruce Simpson

A new PJ8 and well-worn PJ15

Features
The PJ8 and PJ15 pulsejet engines have been designed and constructed in order to provide the following features:
  • Power and reliability
  • Light weight
  • Ease of assembly and maintenance
  • A choice of fuel systems
  • Extended reed valve life
  • Throttleable (injected version only)
These engines are the result of a comprehensive development program that has produced a number of innovative new design elements including:
  • Blast-RingTM valve protection
  • A special triple-layer corrosion-resistant reed valves
  • Unique multi-plate "stacked" valve retainer/protector
  • Direct fuel-injection
  • Liquid or gas fuel operation
Uses
These simple, effective, light-weight engines can be put to many different uses including:
  • Powering model airplanes, boats, cars, etc.
  • Powering bicycles, scooters, etc.
  • Heating large areas
  • Deafening passers-by
Design
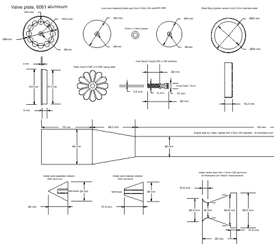
Basically an enhanced Schmidt tube design, these engines have an enlarged combustion zone, straight tailpipe and divergent tailcone.

The valving system uses a mix of traditional petal-valves and two unique features perfected after almost two years of research and development.


Rear view of operating PJ15. Blast-Ring(TM) glows red hot
as it protects the valves from damage
The Blast-RingTM is a special addition to the engine which stops hot combustion gases from reaching the delicate reed valves. This significantly extends the operating life of the reed valves when compared to traditional pulsejet engines.

On top of this, the design of the PJ8 and PJ15 valve systems includes a revolutionary 3-part "stacked" valve retainer that further protects the valves from heat-damage while actually improving the speed of valve actuation.

The overall engine design and the valving system have been optimized to extract the maximum available amount of power that can be obtained from the traditional pulsejet layout. (sample plans).

Construction
The combustion chamber and tailpipe sections of the PJ8 and PJ15 are made from 0.5mm (0.020") stainless steel (304 alloy) which is rolled and welded to form the basic engine shape.

The use of stainless steel for "hotzone" components protects against corrosion and ensures the engine will withstand the very high operating temperatures found in pulsejets. Although these engines run red-hot and the stainless discolors to a gun-metal grey color due to the heat, they won't rust or flake and the changes are purely cosmetic.

Most of the rest of the engine is turned or spun from 6061 or other high-strength corrosion-resistant aluminum.

Thanks to this careful choice of materials and innovative construction techniques, the PJ15 weighs in at just 2.75lbs in direct injection form and 2.8lbs when normally aspirated.

See It Run
If you have RealVideo capabilities installed you can see a spectacular night-time video of the PJ15 in action by clicking here. (1MB download).

Note, the engine is not really glowing white hot in this video -- it's simply that the video camera is particularly sensitive to infrared so that any significant heat appears white.

 

 
More Info on Donating Home | Project Diary | My Tools | Contact Me | Links | My Gas Turbine Project | The Afterburner
Turboshaft Engine | Jet-kart | Pulsejet-powered Kart | Kitsets | Troubleshooting pulsejets
Contact me Valveless Pulsejets | Ramjets Explained | 100lbs-thrust pulsejet | Turbo-turbine FAQ
Chrysler's Turbine-cars | How Pulsejets Work | Flying Platform | Metal Spinning | My Lockwood engine
Starting a pulsejet | Making Reed-valves Last | Pulsejet-powered speedboat | The PDE
Thrust Augmentors List of Sponsors | Master Site Index | The Pulsejet FAQ | DIY Cruise Missile
Copyright © 2001 - 2009 to Bruce Simpson